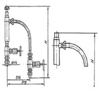
УЗЛЫ ОБВЯЗКИ ОП - 109, ОП - 110, ОП - 111, ОП - 112

Предназначены для подключения импульсных трубных проводок к приборам для измерения и регулирования давления, разряжения и уровня неагрессивных и агрессивных сред Рудо 16 МПа.

Пример условного обозначения обвязки дифманометра ОП-109, для неагрессивной среды: Обвязка ОП-109-С ТУ 36-1759-84.
Обвязки ОП-109, ОП-110 предназначены для подвода импульсных труб сверху.
Обвязки ОП-111, ОП-112 предназначены для подвода импульсных труб снизу.