Разделители мембранные РМ-53**
Разделители мембранные РМ предназначены для предохранения внутренней полости чувствительных элементов измерительных устройств от попадания в нее сред. агрессивных, горячих, кристаллизующихся, несущих взвешенные твердые частицы.
Соединение разделителя с измерительным устройством осуществляется непосредственно или через соединительный рукав, поставляемый по требованию заказчика.
Устройство и работа
Измеряемое давление передается через мембрану и разделительную жидкость на чувствительный элемент измерительного устройства, соединенного с разделителем.
Разделительная мембрана предохраняет разделительную жидкость от непосредственного контакта с измеряемой средой. Жидкость и допускаемая деформация разделительной мембраны выбираются такими, чтобы дополнительная погрешность, вносимая разделителем, была не выше указанной.
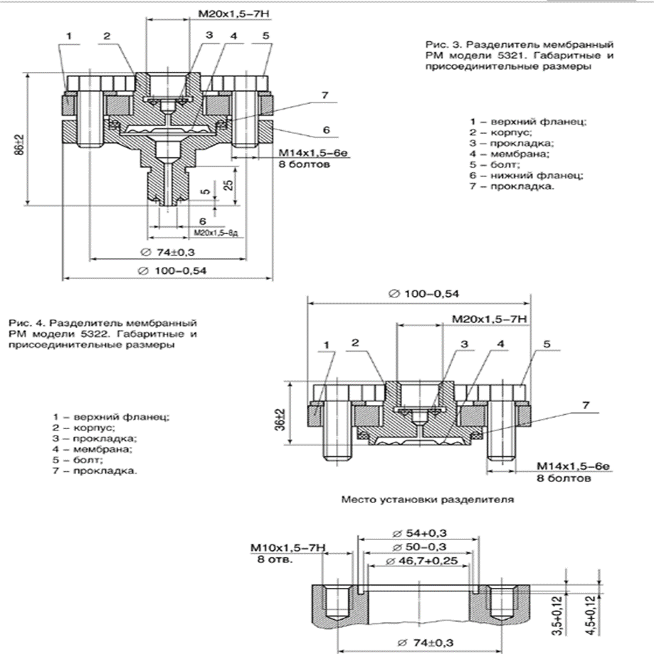
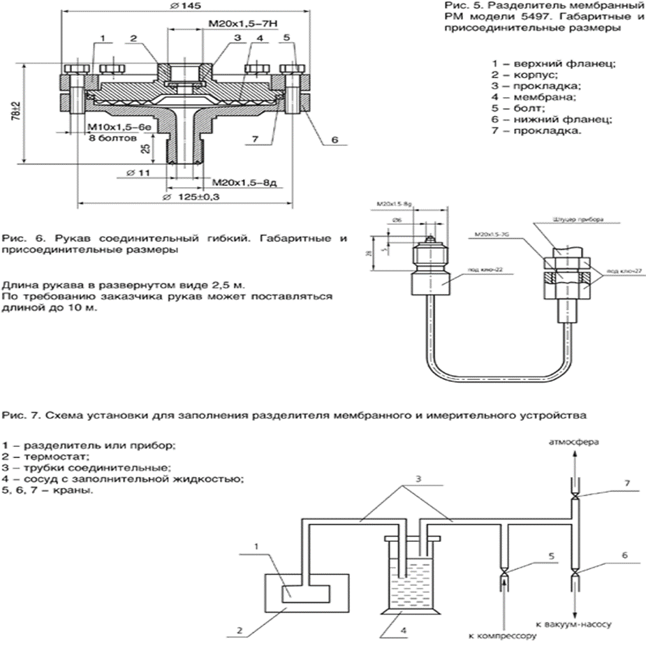
Разделители моделей РМ 5319 и РМ 5321 состоят из верхнего и нижнего фланцев, соединенных болтами, между которыми устанавливается корпус с приваренной к нему мембраной. Уплотнение между корпусом и нижним фланцем, а также между измерительным устройством и разделителем обеспечивается прокладками. В конструкции разделителей моделей РМ 5320 и РМ 5322 с открытой мембраной отсутствует нижний фланец. Открытая мембрана не дает возможности кристаллизующимся средам и твердым осадкам скапливаться в значительном количестве, что может затруднить или совершенно прекратить передачу давления к чувствительному элементу. Открытая мембрана доступна для периодической очистки.
Правила выбора места монтажа, рабочее положение и условия эксплуатации измерительного устройства указаны в руководстве по эксплуатации соответствующего измерительного устройства.
При измерении давления сред с температурой, превышающей допустимую для измерительного устройства, используется соединительный рукав, который может быть установлен как между измерительным устройством и разделителем, так и до разделителя.
При измерении давления сред, имеющих температутру, при которой разделительная среда кристаллизуется или загустевает, соединительный рукав устанавливается между разделителем и местом отбора давления.
Для соединения с местом отбора давления разделители моделей РМ 5319 и РМ 5321 имеют штуцер с наружной резьбой М20х1.5 или G 1/2.
При монтаже разделителей моделей РМ 5320 и РМ 5322 с открытой мембранойприсоединение этих разделителей к месту отбора давления осуществляется фланцами, закрепляемыми болтами.
Уплотнение обеспечивается прокладкой.
ТЕХНИЧЕСКИЕ ДАННЫЕ
Верхний предел измерения прибора, комплектуемого разделителем, МПа, (кгс/см2):
для мод. 5319, 5320, 5497: 0,0,25-2,5 (0,25-25)
для мод. 5321, мод. 5322: 4-60 (40-600)
Дополнительная погрешность измерения, вносимая разделителями, соединенными с измерительными устройствами, не должна превышать +1% нормирующего устройства.
Температура измеряемой среды на входе разделителя, °С от минус -30 до плюс +160.
Примечание: Разделители применяются с соединительным рукавом, если температура измеряемой среды на входе разделителя выше температуры, установленной для работы измерительного устройства.
Изменение выходного сигнала или показаний измерительного устройства с разделителем при отклонении температуры окружающего воздуха на каждые 10°С, % от нормирующего значения: 1,0
Материал деталей разделителей, контактирующих с измеряемой средой: мембрана: сплав 36НХТЮ фланец, корпус: ст. 12Х18Н10Т
По специальному заказу мембраны могут быть изготовлены из тантала.
Длина соединительного рукава, м: 2,5 По специального заказу длина рукава может быть увеличена до 10 м.
Масса разделителей, кг, не более:
для мод. 5319, 5497: 3,0
для мод. 5321: 2,2
для мод. 5320: 2,0
для мод. 5322: 1,5
Пример записи для заказа
|
|
|
|
|
|



