Манометр вэ-16Рб, вэ-16Рб

Манометр ВЭ-16Рб предназначается для работы в системах с неагрессивными и некристаллизующимися жидкостями и газами – в основном трубопроводов, где требуется постоянный контроль давления и возможность автоматической сигнализации в случае нарушения предельно допустимых значений. Благодаря наличию водонепроницаемой оболочки прибор может использоваться на открытом воздухе в условиях выпадения атмосферных осадков и повышенной влажности.
Применение манометра ВЭ-16Рб
Манометр ВЭ-16Рб является взрывозащищенным (В) и электроконтактным (Э) прибором. Последним обусловлено его активное применение вместе с сигнализирующими устройствам прямого действия. Благодаря высокой степени защищенности прибора от механических воздействия и атмосферных явлений, он может использоваться для установки и эксплуатации в помещениях всех классов, под открытым небом при условии защиты от газовых и паровых смесей.
В зависимости от модификации манометры взрывозащищенные ВЭ-16Рб могут иметь различное климатическое исполнение:
- У – для районов с умеренным климатом;
- Т – в условиях тропического климата любой влажности.
Категория размещения приборов – «3» – в закрытых помещениях без установленной климатической техники.
Устройство и принцип действия манометра ВЭ-16Рб
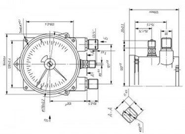
Общее устройство прибора и габаритные размеры можно посмотреть на приведенной ниже схеме.
Основным действующим элементом манометра является пружина, которая посредством трибко-секторного механизма передает усилие сжатия на циферблат устройства в виде единиц давления. Воздействие на пружину осуществляется жидкостью или газом, которые в строго нормированном количестве попадают внутрь корпуса через пропускной штуцер.
На стрелке есть специальный поводок, который приводит в движение заслонки оптопар при достижении предельного (максимального или минимального) значений давления. При этом происходит замыкание контактов и на реле управляющего устройства поступает сигнал, который открывает или закрывает (меняет положение на противоположное) контакты сигнализирующего устройства.

Технические характеристики манометра ВЭ-16Рб
Манометр электроконтактный ВЭ-16Рб является аналогом таких приборов (манометров и вакуумметров) как ДМ2005Cr1Ex, ДВ2005Сг1Ех, ДА2005Сг1Ех, ДМ2005фСг1Ех, ДА2005фСг1Ех, ДВ2005фСг1Ех и обладает схожими техническими характеристиками, устройством и сферой применения.
Технические характеристики устройства:
|
Класс точности: |
1,5 |
|
Диаметр резьбы штуцера |
М20х1,5 |
|
Размер квадрата, мм |
17х17 |
|
Максимальная погрешность срабатывания, % |
25 |
|
Напряжение |
210-230 В при частоте тока 50 Гц |
|
Разрывная мощность |
10 ВА |
|
Взрывозащищённость |
ВЗГ |
|
Максимальная масса, кг |
5,9 |